For Sale

$559,900

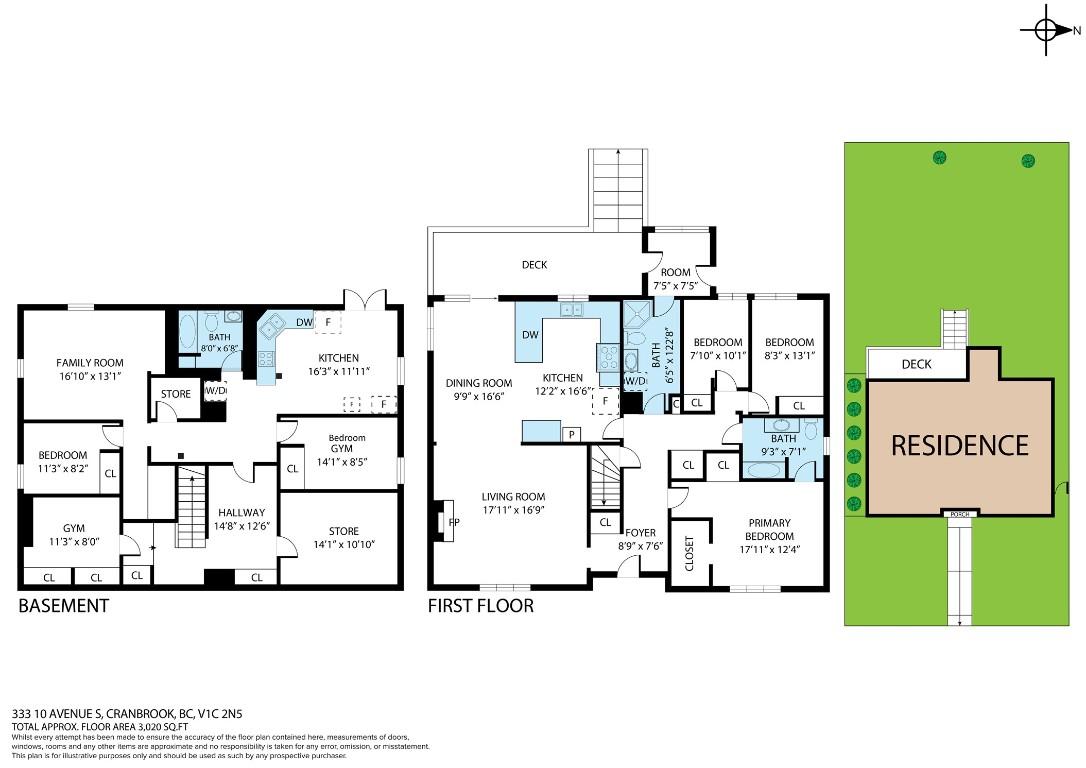
333 10th Avenue, Cranbrook, BC V1C 2N5

5 Beds 3 Baths

Remarks

Set on a generous lot in the desirable Baker Hill area, this character bungalow presents a rare combination of timeless charm, meaningful updates, and proven income potential with a legal secondary suite. From the moment you enter, the warmth of the home is evident, anchored by original hardwood floors that define the character of the main level. The primary living area spans over 1,600 sq ft and offers spacious living and dining areas, three well-proportioned bedrooms, and 2 full bathrooms an ideal layout for comfortable family living or owner occupancy. The primary bedroom is notably generous in size, creating a quiet and functional retreat. Thoughtful upgrades throughout enhance everyday functionality while preserving the home’s classic appeal. The lower level has been professionally configured as a bright, semi-open concept legal suite featuring 2 bedrooms, updated finishes, and a private exterior entrance from the rear yard. The basement suite is currently rented at $1,545 per month, providing reliable income potential. The main floor will be vacant as of April 1st, allowing a new owner the flexibility to occupy the upper level while benefiting from rental revenue below. An efficient boiler heating system provides dual-zone temperature control between levels, offering both comfort and cost efficiency. Centrally located near downtown and major amenities, this property delivers versatility, character, and strong value in one of Cranbrook’s most established neighbourhoods

Property Summary

  • Annual Tax Amount: $4,870.32
  • Lot Size: 0.185 Acres
  • Floor Space (approx): 3117 Square Feet
  • Built in: 1953
  • Bedrooms: 5
  • Bathrooms (Total): 3

Property Features:

  • Architectural Style:
    Bungalow
  • Construction Materials:
    Vinyl Siding , Wood Siding , Wood Frame
  • Cooling:
    None
  • Flooring:
    Ceramic Tile , Hardwood , Vinyl
  • Heating:
    Hot Water , Radiant
  • Parking Features:
    Carport
  • Roof:
    Asphalt , Shingle
  • Sewer:
    Public Sewer
  • Water Source:
    Public

Rooms

  • Storage:
    Level: Basement
  • Storage:
    Level: Basement
  • Bathroom:
    Level: Basement
  • Bedroom:
    Level: Basement
  • Bedroom:
    Level: Basement
  • Bedroom:
    Level: Main Level
  • Bedroom:
    Level: Main Level
  • Living:
    Level: Basement
  • Kitchen:
    Level: Basement
  • Bathroom:
    Level: Main Level
  • Bathroom:
    Level: Main Level
  • Den:
    Level: Main Level
  • Master Bedroom:
    Level: Main Level
  • Kitchen:
    Level: Main Level
  • Dining:
    Level: Main Level
  • Living:
    Level: Main Level

Office Listing: 

Jason Wheeldon - Personal Real Estate Corporation  ,  Kaytee Sharun - Real Estate Agent

Lifestyle
Neighbourhood Info

Get More Info

Book a tour